Gustavsbergs vårdcentral

Granskad:

Foto visar personalrum med utsikt. Personalrummet i Gustavsbergs vårdcentral. Foto: Åke E:son Lindman

I Gustavsberg behövde vårdcentralen byggas ut då lokalerna blivit för små, samtidigt var det svårt att rekrytera personal då samhället ligger en bit utanför Stockholms stadskärna. Valet föll på en äldre kontorsbyggnad nere vid hamnen med magnifik utsikt ut över Farstaviken. Här har verksamhet och arkitekt utnyttjat byggnadens och platsens kvaliteter och utformat en varm och omsorgsfull miljö för vård som stödjer hälsa och välmående för både personal och patienter. Vårdcentralen har också blivit en ny mötesplats i Gustavsberg med plats för fika, danskurs, föreläsningar och julfest. 

Lärande exempel på mervärden, process och estetik

Vårdinriktning: Vårdcentral, barnavårdscentral, psykosocialt stöd, rehabilitering samt forskning och undervisning

Brukare: Gustavsbergs Vårdcentral

Byggnadstyp: Ombyggnation (tidigare kontor och lagerbyggnad)

Region: Region Stockholm

Kommun: Värmdö kommun

Byggår/färdigställt: (nybyggnad 1971) ombyggnad 2007

Beställare: Region Stockholm, Stockholms Läns sjukvårdsområde

Fastighetsägare: Gustavsbergs Hamn AB

Verksamhetsansvarig: Kersti Ejeby, verksamhetschef

Gestaltningsansvarig arkitekt: Anders Landström, Landström Arkitekter

Gestaltningsansvarig inredningsarkitekt: Anna-Carin Sundberg, Sundberg Arkitekter

Gestaltningsansvarig landskapsarkitekt: Utemiljö ingick inte i projektet

Gestaltningsansvarig arkitekt ursprunglig byggnad: KF Arkitektkontor

Konst: fotografier bekostade av verksamheten, 1%-regeln gäller ej

Planprocess: byggt inom befintlig detaljplan

Entreprenadform: hyresanpassning av genomförd fastighetsägare

Yta: Bruttoarea byggnad: 5000m2

Fastighetsarea:  6700m2

Invånare i huvudorten: 24 000 invånare i huvudorten, 45 000 invånare i kommunen (2019, enligt kommunens hemsida) 

Antal listade patienter: 31 500 patienter 2020

Illustrationen visar en typologi över vårdens byggda miljöer. Ring visar vilken typ av vårdmiljö detta exempel är. Klicka på illustrationen för att se den i ett större format. Illustration: Jenny Lilja/Boverket
Illustration med ett hus och ett hjärta. Behov och vision. Illustration: Jenny Lilja/Boverket

Process och drivkraft

Behov och vision

Befintlig byggnad gav nya möjligheter till kvalitet

Det fanns ett stort behov att bygga ut vårdcentralen i Gustavsberg då befolknings-ökningen var snabb. Det var samtidigt svårt att rekrytera personal. Den befintliga vårdcentralen låg i den nya delen av Gustavsbergs centrum, i lokaler från 1980-talet. Verksamhetschefen för vårdcentralen fick uppdraget av Stockholms Läns sjukvårdsområde att hitta en lösning på utrymmesbristen. Hennes vision var att skapa en vårdcentral med möjlighet till forskning och utbildning, och samtidigt en attraktiv miljö med fokus på trivsel och skönhet. Hon hittade platsen, en äldre kontorsbyggnad från 1971 som var tillräckligt stor och hade ett utvecklingsbart läge. Byggnaden låg nere vid hamnen i den gamla delen av Gustavsbergs centrum. Här ville hon utveckla en nytänkande vårdcentral med vackra utblickar, mycket dagsljus och generösa inre miljöer med omsorg och hemmakänsla. Den byggda miljön skulle bli ett viktigt stöd både för personal och patienter.

Olika musikinstrument i ett personalrum. Farstaviken och skärgårdslandskapet syns väl från personalrummet, och instrumenten står redo för användning för den som vill. Foto: Sonia Andersson/Boverket

Vi hade en längtan till det vackra, skönhet är viktigt i andra hus men inte i vårdbyggnader – det måste vi ändra på!

– Kersti Ejeby, verksamhetschef.

Planeringsskede

Illustrationen visar en penna och papper. Planeringsskede. Illustration: Jenny Lilja/Boverket

Fokus på tillvaratagande av platsens kvalitéer

Stockholms Läns sjukvårdsområde gav ett positivt svar på det nya förslaget till vårdcentralens placering och lösning på utrymmesbrist. Verksamhetschefen tog då kontakt med den privata fastighetsägaren till kontorsbyggnaden som blev intresserad av att få vårdcentralen som hyresgäst. Avtal blev skrivet med Stockholms Läns Landsting. Beställning vad gäller ombyggnad och lokalanpassning gick genom fastighetsägaren, här kunde verksamhetschefen påverka valet av arkitekt för ombyggnaden. Hon sökte en arkitekt som delade visionen om en omhändertagande vacker miljö, någon som förstod platsens karaktär med skärgården som en del av vardagen. Hon blev rekommenderad av branschfolk Anders Landströms Arkitektkontor som kontaktades av fastighetsägaren och arbetet kunde börja.

Förtroendefull process tillsammans med personalen

Samarbetet med arkitekten påbörjades och fungerade väl. Representanter för olika yrkeskategorier och behov inom personalgruppen utsågs, dessa deltog därefter i fyra workshops tillsammans med arkitekt. Olika alternativ skissades fram för att se hur önskemål och behov skulle kunna tillgodoses på ett bra sätt. Det mest utmärkande i det slutliga förslaget blev att många av vårdcentralens rum fick ta del av den storslagna utsikten ut över Farstaviken. I förslaget fanns också beskrivningar av de material och den känsla av omsorg och värme som skulle prägla den nya vårdcentralen: trämaterial på väggarna, ljus färgsättning, växtvägg i väntrummet, och ett unikt och hemliknande personalrum på översta våningen.

Det var något sinnligt över hela processen, arkitekten höll ordning på funktionerna men pratade också hela tiden om byggnadens skönhetsvärden – det gjorde oss trygga.

– Kersti Ejeby, verksamhetschef.

Bygglov med krav på bevarande av kulturbyggnad

Gällande detaljplan möjliggjorde ändrad användning av byggnaden från kontor till vårdcentral. Då kontorsbyggnaden var en del av Gustavsbergs industrihistoria med tidstypisk arkitektur blev det av stor vikt i bygglovsskedet att bevara fasaden ut mot hamnen. Detta kunde genomföras samtidigt som verksamhetens behov och vision kunde uppnås.

Byggskede

Illustration med byggkran. Byggskedet. Illustration: Jenny Lilja/Boverket

Förtroendefull gemensam byggprocess

Byggskedet i detta exempel innefattar ombyggnad av den befintliga kontors-byggnaden samt bakomliggande lagerlokaler. Byggskedet genomfördes som en hyresgästanpassning där fastighetsägarens eget byggbolag anlitades. Vid varje möte i byggskedet deltog både verksamhetschef och arkitekt vilket säkerställde att visionen följde med i genomförandet. Utmaningar och problem som uppstod kunde lösas gemensamt där både funktion, estetik och konstruktion togs i beaktande. Ombyggnadsförslaget hade beskrivits i detaljerade ritningar vilket också underlättade kommunikationen i processen.

Inget blir bra av sig självt! Det krävs stor tillit mellan alla parter, och arkitektens tid är viktig för att få kvalitet på lång sikt.

– Anders Landström, arkitekt.

Varsam ombyggnad av robust konstruktion

Kontorsbyggnaden ritades ursprungligen av KF:s Arkitektkontor och har en unik modernistisk fasad ut mot hamnen, i glas och emaljerad plåt. Fasaden har bevarats, och den nya rumsindelningen har anpassats till dess måttsättning. Byggnadsmåtten fungerade väl för att uppfylla krav på tillgänglighet och funktioner.

Den bakomliggande lagerlokalen vilken också ingick i projektet bestod tidigare av ett stort rum utan mellanplan, byggnadens tegelfasader var slutna utan fönsteröppningar. I denna del kompletterades med mellanbjälklag och nya fönsteröppningar. Centralt i byggnaden i anslutning till kontorsdelen behölls lagerlokalens ursprungliga takhöjd, här placerades en ny trappa kombinerad med en ny stor takljuslanternin.

Förvaltningsskede

Illustration med tre personer i ett hus. Förvaltningsskede. Illustration: Jenny Lilja/Boverket

Plats för både expansion och nya mötesplatser

Byggnadens gedigna konstruktion och kvalitet på ytskikt, samt väl genomförda nya detaljlösningar gör att lokalerna håller över tid. Den gröna växtväggen i väntrummet växer och frodas, den har en låg förvaltningskostnad då bevattning sker i ett slutet automatiskt system.

Verksamhetschefens krav till fastighetsägaren var att utbyggnad skulle kunna genomföras inom byggnaden, att disponibla ytor skulle finnas reserverade för att vårdcentralen över tid skulle kunna expandera. Dessa ytor har sedan successivt tagits i anspråk, dels för träningslokaler för fysioterapi, utbildningslokaler för studenter och även för en dagakutmottagning.

Den byggda miljöns kvalitet bygger i detta fallet till stor del på utsikten ut över hamn och vatten. Här är det viktigt att i förvaltningen av byggnadens omgivning vara medveten om, och säkerställa att utsikten bevaras. Här finns även möjligheter att ytterligare stärka kvaliteten, där parkeringsytan framför vårdcentralen har stor potential att utvecklas vidare, både vad gäller mera grönska och belysning.

Utformning och estetik kopplat till välmående och hälsa

Illustration över alla processteg i vårdens byggda miljöer. De kvaliteter vi lyfter i våra lärande exempel är byggnadskaraktär, entré, material, detalj, dagsljus, utblick, grön miljö, orienterbarhet, rumskvalité, social densitet samt konst och design. Illustration: Jenny Lilja/Boverket

Byggnadskaraktär, entré, material och detalj

Illustration med handtag, dörr och tegelstenar. Byggnadskaraktär, entré, material och detalj. Illustration: Jenny Lilja/Boverket

Glaspartier inramade av emaljerad plåt

Det första intrycket av Gustavsberg Vårdcentral är den karaktäristiska fasaden i glas och emaljerad plåt. Den modernistiska kontorsbyggnaden från 1971 har, även med sitt nya innehåll, kunnat behålla sin identitet väl. Rektangulära former återkommer som ett tema i en rytmisk och konsekvent fasadindelning, som tidsenligt följer den bärande konstruktionens måttkedja. De mindre öppningsbara fönsterbågarna i fasaden bryter av i den något stränga fasadrytmen. Byggnadens nya entrévolym har underordnats fasadens uttryck, både i material och uttryck. Långa ramper längs med fasaden leder upp till bottenvåningens upplyfta nivå.

Fasad mot norr. Illustration: Landström Arkitektbyrå
Foto visar del av fasad med många fönsterytor. Utsnitt av fasaden ut mot hamnen. Foto: Sonia Andersson/Boverket

Tegelfasad med nya fönsteröppningar

Den intilliggande lagerlokalen som också ingår i vårdcentralens användning har en röd tegelfasad. Här har håltagningar gjorts i den tidigare slutna fasaden och fönsteröppningar har lagts till. Dessa har fått anpassas till byggnadens nya funktioner men också till den befintliga bärande konstruktionen, och har därför placerats i ett oregelbundet system, vilket gör att byggnaden fortfarande kontrasterar till sin stolta granne. De två byggnaderna spelar samma roll sinsemellan som när de byggdes även om ändringar och tillägg gjorts; huvudbyggnaden som stolt spanar ut mot vattnet och den sidoordnade tegelvolymen.

Sektion genom vårdbyggnaden. Illustration: Landström Arkitektbyrå

Trä i detaljer och plywood som blickfång

Interiören i det ombyggda kontorshuset präglas av en ljus färgsättning med många inslag av trä. Dörrpartier och glaspartier har träinramningar. Större väggpartier med plywood har lagts till som blickfång. Dessa används också för skyltning i anslutning till receptioner och till den nya trappan mitt i byggnaden. Byggnadens nya interiör har detaljlösningar som är omsorgsfullt lösta och genomförda.  På golven på första och andra våningen ligger grå mineralklinkergolv, medan personalrummet på tredje våningen har ett trägolv i ek.

Inordnade funktioner i befintlig byggnad

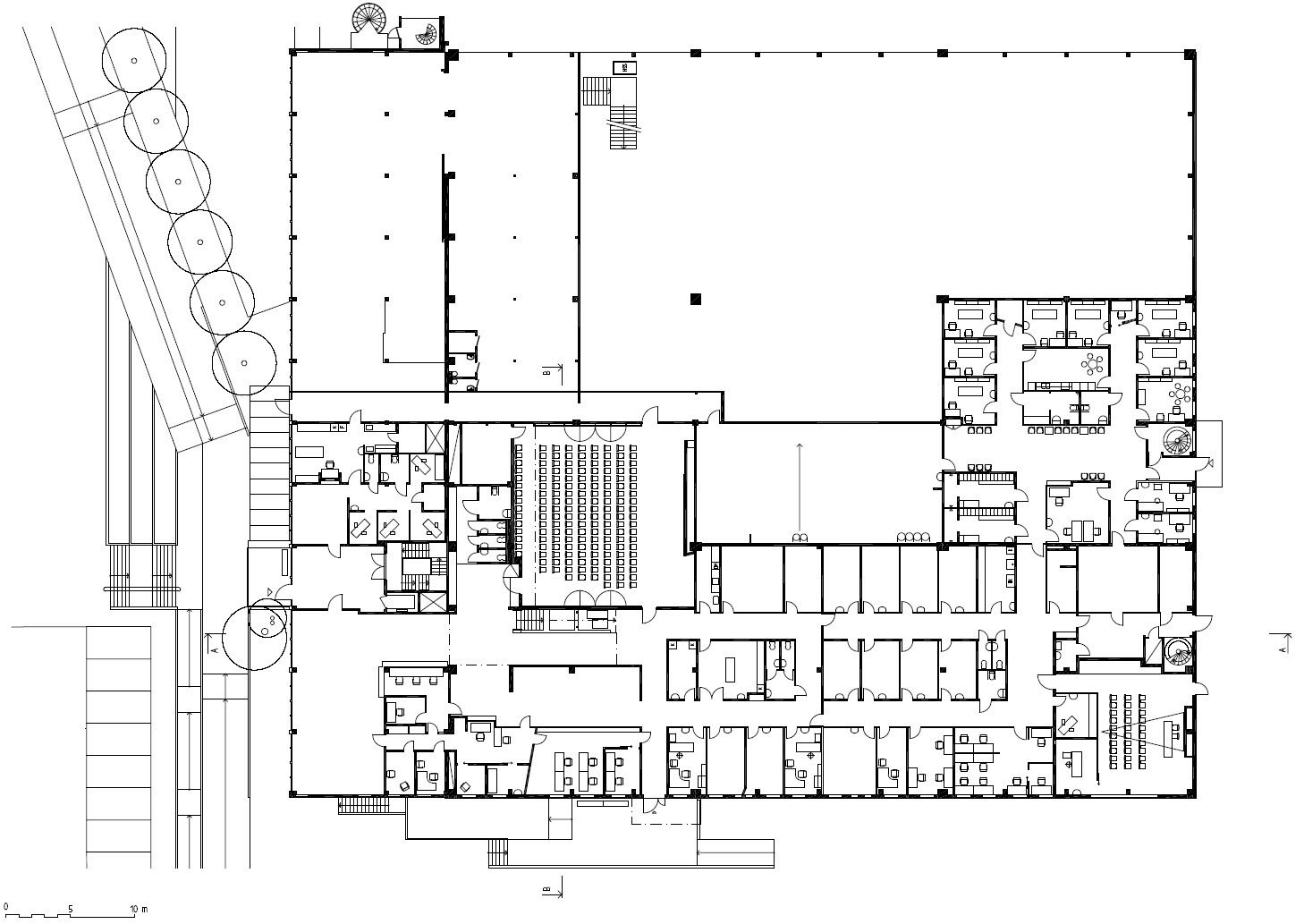
Bottenvåningens planlösning visar hur vårdcentralens funktioner inordnats i den befintliga byggnaden. Här syns de yttre ramperna som följer fasaden upp till entrén och entréslussen. Vid sidan av entrén ligger det stora väntrummet. I anslutning till väntrummet ligger receptionen, och den nya trappan som är placerad centralt i byggnaden. En stor hörsal har placerats vid sidan om trappan, nära både entré, reception och väntrum. Längs med trappan leder en korridor vidare in i byggnaden där läsrum och mindre undervisningslokaler för studenter är placerade, samt även en större träningslokal för fysioterapi.

På andra våningen intill trappan ligger ett kompletterande väntrum. Här ligger också de flesta mottagningsrummen, placerade längs med fasaderna.

På det översta tredje våningsplanet är personalrummet placerat, längs med hela den främre fasaden ut mot hamnen. Här ligger också ett större tillagnings- och serveringskök som fungerar både för personalluncher och för stora fester.

Planlösning bottenvåning. Illustration: Landström Arkitektkontor
Planlösning våning två. Illustration: Landströms Arkitektkontor
Planlösning våning tre. Illustration: Landströms Arkitektbyrå

Dagsljus, utblickar och grön kvalitet

Illustration med ett fönster, sol och träd. Dagsljus, utblickar och grön kvalitet. Illustration: Jenny Lilja/Boverket

Uppglasad fasad ger dagsljus och utblick

Ny forskning visar att dagsljus spelar en stor roll för välmående och stöd till hälsa. Den uppglasade fasaden mot hamnen utnyttjas maximalt på vårdcentralens alla våningar och åstadkommer en hög kvalitet vad gäller dagsljus och utblickar. Både väntrummet på markplanet, mottagningsrummen på de övre våningarna och personalrummet på tredje våningen får mycket dagsljus och generösa utblickar genom den uppglasade fasadens fönsterpartier. Den stora nya taklanterninen centralt i byggnaden ger ett nödvändigt komplement av dagsljus, vilket gör att den gamla byggnaden kan fungera väl för sitt ändamål.

Foto på en administrativ arbetsplats vårdmiljö. Administrativ arbetsplats på andra våningen. Foto: Sonia Andersson/Boverket

Gröna och blå kvalitéer

Två foto på grön växtvägg i väntrum. Grön växtvägg i entrérummet Foto: Åke E:son Lindman

Nedan beskrivs de gröna och blåa kvaliteterna för Gustavsbergs vårdcentral, de består främst av tillgången på utblickar mot vattnet och omgivande landskap och den gröna växtväggen i entrérummet. Vårdcentralens läge i samhället ger också goda promenadmöjligheter, både utmed Farstaviken och till det närliggande skogsområdet som ligger väster om vårdcentralen.

Principmodell för utemiljöns fyra zoner med olika kontakt med utemiljön. De fyra zonerna har efter hand kompletterats med ytterligare en zon, zon 0. Principmodellen är framtagen av Anna Bengtsson, SLU Alnarp. Illustration: Illustration: Jenny Lilja/Boverket, baserad på modell Anna Bengtsson/SLU

Fin utsikt mot småbåtshamn och skogsmiljö (zon 1)

Byggnadens placering med långsidan ut mot Farstaviken, och den rika fönstersättningen ger en storslagen utsikt över hamnen och även ut mot skogsområdet på andra sidan av Farstaviken. Flertalet forskningsstudier visar att utsikt mot gröna miljöer har en viktig stressänkande funktion, tillvaratagandet av glaspartierna i byggnaden blir därför ett kompletterande stöd i vårdmiljön. Dock påverkas upplevelsen av utsikten på våningsplanet längst ner något av att byggnadens närmiljö främst består av ytor för parkering och trafik.   

I väntrummet i anslutning till entrén finns en större fondvägg klädd med växter. Den naturkoppling som den frodiga fondväggen skapar blir stark och ger en magnetisk effekt. Växtväggen ger rummet en lugn inramning och bidrar till en attraktiv och trivsam miljö både för patienter, besökare och personalen.

Övergångszon mellan inne och ute har inte varit aktuell här (zon 2)

Vårdcentralen ryms i en befintlig byggnad och det har inte gjorts några tillägg i form av balkonger, altaner eller vinterträdgård, som kan fungera som en övergångszon mellan inne och ute. Då det är en vårdcentral utan inlagda patienter är detta av mindre betydelse, men skulle kunna ha varit en kvalitet för personalen.

Hårdgjord närmiljö (zon 3)

När det gäller utemiljön i zonen närmast byggnaden har entrén en särskilt viktig roll, då den utgör besökarens första möte med vårdmiljön. En välkomnande entré kan påverka patientens mottaglighet för vård genom att stressnivåerna sjunker. Den yttre entrén till Gustavsbergs vårdcentral domineras av patientparkering och tillgänglighet för olika fordon och för besökare. Gustavsbergs vårdcentral ligger i ett sammanhang med annan bebyggelse, vars närmiljö främst består av byggnader eller hårdgjord yta. Entrén är vänd mot småbåtshamnen, vilket tillför platsen kvaliteter. Utemiljön präglas dock av större asfalterade ytor med inslag av några få mindre gräsplanteringar. En omgestaltning av byggnadens närmiljö med tillägg av gröna element som till exempel träd skulle bidragit till en mer välkomnande vårdcentral. Träd skulle dessutom bidragit till att ta ner byggnadens och gaturummets skala.

Foto över entré till Gustavsbergs vårdcentral. Entrén till vårdcentralen är främst utformad för basal tillgänglighet. Hur hade ankomsten till vårdcentralen kunna upplevas om omsorg lagts vid att skapa en grön, välkomnande och hälsofrämjande miljö? Foto: Helena Backlund

Nära till fina naturupplevelser (zon 4)

Befintlig forskning visar på betydelsen av kontakt med omgivningen utanför vårdbyggnadens närområde. Det finns ingen grön utemiljö som kopplar direkt till vårdbyggnaden, men det närliggande promenadstråket längs med vattnet används flitigt av såväl personal som patienter.

Orienterbarhet, rumskvalité och social densitet

Illustration med skyltar, ett  hjärta och några personer. Orienterbarhet, rumskvalitet och social densitet. Illustration: Jenny Lilja/Boverket

Lugn plats innanför entrén

Direkt innanför vårdcentralens entré finns det stora väntrummet, både för dem som till exempel ska anmäla sig i receptionen och för dem som väntar på skjuts därifrån. Rummet har medvetet inretts för att skapa en lugn och trivsam atmosfär. Besökare kan ta en kopp kaffe och titta på utsikten i ett möblemang som påminner mer om ett café än ett väntrum. Möblerna är flyttbara så att patienten kan välja att sitta enskilt eller tillsammans med andra. Detta ger en möjlighet till variation i social densitet, vilket för många ger stressänkande effekter enligt ny forskning. Utsikten skyms dock till viss del av en bilparkering som är placerad mellan vårdcentralen och havsviken. En gång i veckan spelas loungemusik live i väntrummet. Då är alla välkomna, även om man inte har någon bokad tid just då.

Foto på väntrum med stort fönster och grön vägg av växtlighet. Väntrum med grön vägg och utblick. Foto: Sonia Andersson/Boverket

Öppen och välkomnande receptionsdisk

Innanför entrén och i anslutning till väntrummet finns en väl synlig receptionsdisk där patienter kan anmäla sig innan de går vidare till rätt väntrum. Den är väl tilltagen och består av en disk utan skyddsglas, vilket ger ett välkomnande intryck.

En lokal med en öppen receptionsdisk. Öppen receptionsdisk vid väntrummet. Foto: Åke E:son Lindman

Hälsotrappa i fokus och god orienterbarhet

Väl synlig från receptionsdisken finns en ny bred trappa upp till andra våningen där de flesta av mottagningsrummen ligger. Att trappan har fått en så framträdande placering och tilltalande utformning gör det lätt att hitta i byggnaden, och att den troligtvis används av fler personer än om den hade haft en mer undanskymd placering. Trappans steg har klassiska mått med något lägre höjd och djupare stegmått än minimikraven, detta gör den behaglig att gå i. Detaljlösningar i räcken och balustrader är unikt utformade.

Ovanför den nya trappan i byggnadens mitt har ett stort takljus lagts till, vilket hjälper till att visa trappan och att locka till användning, förutom att det ger ett viktigt tillskott av dagsljus.

Fotot visar trappa upp till övre plan skärgårdsakuten. Bilden visar den så kallade ”hälsotrappan” och skyltning med stor text som syns på avstånd. Foto: Åke E:son Lindman

Skyltning både som utsmyckning och som stöd för orientering

Skyltningen i vårdcentralen är gjord med omsorg, den är mycket tydlig med vit text på en bakgrund av de obehandlade plywoodskivorna som sitter på väggarna. Träytorna är strategiskt placerade i byggnaden, de fångar uppmärksamheten och de värmer dagsljuset. Att skyltningen är välgjord och framträdande gör att den också fungerar som en form av utsmyckning.

Attraktiv arbetsplats med utbildningsfokus

En större hörsal för upp till 100 personer byggdes in i vårdcentralen redan från början, då det i visionen för verksamheten även fanns en bild av att använda vårdcentralen som samlingsplats på flera sätt. Hörsalen kunde genomföras då det fanns möjligheter till detta i de inre delarna av den befintliga byggnaden. Hörsalen är placerad på bottenvåningen nära entrén och väntrummet. Den används idag flitigt både för utbildning och kurser och är ett viktigt komplement i verksamheten. Genom hörsalens placering och dess användning stödjer den vårdcentralens roll som samlingsplats.

Vårdcentralens olika rum för utbildning och generösa plats för studenter har gett verksamheten goda möjligheter att utvecklas. Flera forskningsprojekt inom psykiatri samt utvidgad kompetens inom detta vårdområde har gett verksamheten nya möjligheter att stödja patienterna.

Två foto med stolar. Vårdcentral med rum för utbildning och Vårdcentralens hörsal. Foto: Linnea Lin (vänster), Åke E:son Lindman (höger)

Smala mottagningsrum med vacker utsikt

De flesta av mottagnings- och undersökningsrummen på andra våningen har fönster med utsikt över havsviken, vilket ger en behaglig känsla i rummen. De är dock långa och smala, eftersom de har anpassats till fasadens mått. Det innebär att det finns mindre utrymme för medföljande som till exempel ledsagare eller familjemedlemmar. Det kan ses som en jämlikhetsfråga eftersom det är vanligare att fler familjemedlemmar vill följa med på läkarbesöken i en del kulturer. Den begränsade ytan kan även påverka känslan av personlig integritet eftersom det finns lite utrymme runt patienten och läkaren. Arbetsmiljön påverkas också då läkaren ibland behöver flytta ut britsen vid undersökning eftersom den behöver stå med långsidan mot en vägg för att man ska kunna passera in i rummet.

Foto visar dagsljus som indirekt flöde i ett mottagningsrum. Mottagningsrum med utsikt över havsviken. Foto: Åke E:son Lindman

Indirekt dagsljus i korridorer

Även korridoren innanför mottagningsrummen får nytta av dagsljuset från den uppglasade fasaden, detta genom dörrpartier i tjockt frostat glas utan risk för insyn, som tillsammans med överljus ger ett generöst indirekt dagsljus. De återkommande dagsljusinsläppen bryter också av i den något långa korridoren. 

Foto visar indirekt dagsljus i korridor. Indirekt dagsljus till korridor. Foto: Åke E:son Lindman

Personalrum som visar på omsorg om personalen

Vårdcentralen har utformats med stort fokus på personalens trivsel och välbefinnande. Detta ger i förlängningen en betydelsefull kvalitet för patienten, både vad gäller personalens välmående och förmåga att ge vård, och vad gäller kvalitén i miljön vid besöket på vårdcentralen.

Person tittar ut genom stort fönster. Personalrummet erbjuder en magnetisk plats med kamin och utsikt över havsvik. Här finns fin möjlighet till en avkopplande paus. Foto: Sonia Andersson/Boverket

Personalen har ett gemensamt väl tilltaget personalrum på översta våningen med en vacker utsikt och ett stort inflöde av dagsljus, en satsning som vill visa hur värdefull man anser att personalen är. Rummet har gjorts hemtrevligt med mjuka soffor och fåtöljer, en braskamin, musikinstrument, och även traditionell matplatsmöblering med plats för många. Att det finns olika sittmöjligheter möjliggör både interaktion med kollegor och en lugn stund i avskildhet. Rummet används även som festlokal vid jul, som matsal i samband med föreläsningar och andra större möten, och som konsertlokal vid musikevenemang.

Hemkänsla, mjuka soffor, vacker utsikt och kamin – det känns lite som lyx i vardagen, och det behövs för att varva ner och orka.

– Kersti Ejeby, verksamhetschef.

Konst och design

Illustration med palett och pensel. Konst och design. Illustration: Jenny Lilja/Boverket

Privat fastighetsägare ger andra förutsättningar för konst

Då vårdcentralen ligger i en byggnad som inte ägs av regionen kommer en procent-regeln vad gäller konst inte verksamheten till del. Foton med igenkännbara naturmotiv från skärgården utanför Gustavsberg, där motiven lånats från ortens skärgårdsstiftelse, har använts som utsmyckning, men konstnärlig utsmyckning saknas i övrigt.

Foto på väntrum med tavla på väggen med naturmotiv. Foton med naturmotiv som utsmyckning. Foto: Anna-Carin Sundberg

Byggnadens roll i samhälle och sammanhang

Illustration som visar olika delar i vårdens byggda miljöer. Byggnadens roll i samhälle och sammanhang. Illustration: Jenny Lilja/Boverket

Placering i samhälle/stad

Bruksort nära stor stad

Samhället Gustavsberg, som är Värmdös kommuncentrum, ligger 3 mil från Stockholms centrala delar. I Gustavsberg finns offentlig och kommersiell service för alla kommuninvånare, men också kulturell verksamhet och mötesplatser av olika slag. Stora delar av Gustavsberg är riksintresse för kulturmiljön, vilket beror på den välbevarade bruksortskaraktären från tiden när porslinstillverkningen i Gustavsbergs Porslinsfabriker dominerade orten. Gustavsberg präglas av en uppdelad bebyggelsestruktur där bostäder och porslinsverksamhet historiskt sett har varit åtskilda. Under 60-talet anlades Gustavsbergs centrum mellan dessa områden, i ett försök att länka samman bostadsområdet med fabriksområdet. Men centrat kom ändå att upplevas som en liten egen enklav.  Vårdcentralen i Gustavsberg ligger i den äldre delen av samhället, nere vid småbåtshamnen och de gamla fabrikskvarteren.

Röd ruta visar Gustavsbergs vårdcentral. Röd pil visar huvudentré. Foto: Lantmäteriet
Kartbilden visar Gustavsbergs två centrum. Illustration: Lantmäteriet

Gustavsbergs två centrum

Det är främst i Gustavsbergs gamla fabriksområde vid hamnen som det har etablerats nya bostäder, handel och service. Vårdcentralen har bidragit till att aktivera denna del av Gustavsberg på nytt. Bostäder byggs söder om vårdcentralen och flera äldre byggnader tas i anspråk till nya funktioner. De gamla industribyggnaderna i närheten fungerar fortfarande som en attraktion och försäljning av Gustavsbergsporslinet.

Foto visar Gustavsbergs hamn. Gustavsbergs hamn. Foto: Helena Backlund

Det upplevs än dag som om Gustavsberg har två centrum; Porslinskvarteren/ Fabriksområdet och Gustavsbergs centrum. I kommunens utvecklingsplaner finns förslag på att bättre knyta samman de två centrumdelarna, både genom nya och förbättrade gång- och cykelvägar, och genom olika delmål på vägen, såsom den planerade stadsparken och nya mötesplatser vid hamn och bryggor.

Masterplan Gustavsberg. Klicka på bilden för att se den i större format. Illustration: Värmdö kommun

Fysisk och upplevd tillgänglighet

Tydlig och lättillgänglig, men inte så trygghetsskapande entré

Att Gustavsbergs vårdcentral finns i en äldre känd och väl synlig byggnad i en kulturmiljö som spelat stor roll för platsens utveckling stärker verksamhetens identitet och kan hjälpa till att stödja den upplevda tillgängligheten. Byggnadens väl synliga och uppglasade fasad ut mot hamnen blir i sig den signal som hjälper till att lotsa patienten fram till entrén.

Vårdcentralens entré är lätt att hitta, då den är placerad på långsidan och synlig genom en utbyggnad på den annars ”strikta” fasaden. Ytan framför entrén är dock utformad för att lösa framförallt tillgängligheten för bilar. Detta ger en hårdgjord miljö, där det kan kännas otryggt att som gående ta sig till entrén, särskilt för den som inte mår så bra eller har en funktionsvariation. Den stora parkeringsytan kan också upplevas som otrygg, då den är dåligt upplyst och man är utsatt som gående.

Väntrummet direkt innanför entrén, med generöst dagsljus, utblickar, en grön växtvägg i fonden och en öppen bemannad reception kompenserar dock och stärker känslan av välkomnande.

Tillgänglighet med gång och cykel

Fabriksområdet vid hamnen i Gustavsberg, där vårdcentralen ligger, är kopplat till det regionala cykelvägnätet genom den cykelväg som följer Odelbergs väg längs med Farstaviken. Det finns dock ingen cykelparkering i direkt anslutning till vårdcentralens entré, den är placerad på bortre gaveln vid bilparkeringen.  Det saknas också en koppling mellan cykelvägen och vårdcentralens parkering. För gående finns en gångväg som löper upp till vårdcentralen och det finns också en vacker promenad utmed vattnet. Gångvägen upp till entrén har gatubelysning i form av pollare som lyser upp marken. Däremot saknas belysning på vägen till parkering för bil och cykel. Detta kan leda till att besökare och personal kan uppleva denna sträcka som otrygg.

En fasad med många stora fönster. Fasad mot norr. Lutande gångbana upp mot huvudentré. Foto: Anna Gäderlund/Boverket

Tillgänglighet med kollektivtrafik

Vårdcentralen är tillgänglig för kollektivtrafik. Närmaste busshållplats är placerad ca 100 meter från vårdcentralens entré. Ytterligare en hållplats finns i Gustavsbergs Centrum 600 meter från vårdcentralen. Merparten av bussarna till och från Nacka och Stockholm (Slussen) går via Gustavsbergs Centrum.

Idag pendlar cirka tre fjärdedelar av de boende i Gustavsberg med bil och kommunens mål är att hälften av pendlingsresorna i framtiden ska ske med kollektivtrafik. Det är därför angeläget att arbeta för bättre tillgänglighet till vårdcentralen med kollektivtrafik

Tillgänglighet med bil

Merparten av vårdcentralens besökare kommer antingen med bil eller med färdtjänst. Byggnadens entréplan ligger upplyft i förhållande till omgivande mark. Längs med fasaden har därför två ramper lagts till. Dessa leder från var sitt håll upp till vårdcentralens utskjutande entrévolym. Ramperna hanterar angöring både för biltrafik och för gående besökare. Färdtjänsten kan angöra direkt till entrén och i nära anslutning till vårdcentralen finns det en större parkering för bilar.

Utveckling och sammanhang

Återbruk ger kontinuitet och förankring

Den byggnad som vårdcentralen ligger i är starkt kopplad till ortens historia. Kontorshuset Tekniskt Center stod klart 1971 och utgjorde då Gustavsbergs Fabrikers tredje kontorshus. Kontorshuset kom på grund av sin uppglasade fasad att i folkmun kallas för ”Glashuset”. Den strängt modernistiska fasaden mot Farstaviken är klädd med emaljerad plåt från Badkarsfabriken i Gustavsberg. När porslinsfabriken slogs samman med finska Wärtsilä 1987 flyttade porslinsavdelningen ut från huset. Nya verksamheter fyllde därefter huset och sedan år 2006 finns Gustavsbergs vårdcentral i byggnaden.

Att nyttja en befintlig byggnad med kulturhistoriskt värde till ett annat ändamål istället för att bygga en helt ny byggnad är ett bra sätt att skapa kontinuitet och förankring i orten och dess utveckling. Genom att ta hand om befintliga värden visas en omsorg om stadens invånare, men också att vårdcentralen har en viktig funktion i samhället som bör ges en attraktiv plats. Vårdcentralen har placerats på första parkett mot småbåtshamnen, och platsen blir ett viktigt varumärke för vårdcentralen.

Många här i Gustavsberg är stolta över sin vårdcentral. Att läsa av en byggnads betydelse sker med automatik, den vackra byggnaden gör oss stolta – och då mår vi också bättre.

– Kersti Ejeby, verksamhetschef.

Framtidsplaner med fokus på expansion och hälsa

Gustavsbergs centrala delar byggs ut successivt, bland annat i kvarteren söder om vårdcentralen. Det blir intressant att framöver följa vad detta får för inverkan på vårdcentralen. Redan idag har vårdcentralen fått många fler listade patienter och verksamheten har tagit ytterligare ytor i anspråk i byggnadens bakre delar. Vid vårdcentralens planering var man från början relativt frikostig med ytan, fortfarande finns det utrymme för att ta emot fler patienter. Men med en utveckling där digital vård kan komplettera och delvis ersätta fysiska möten kan det enligt verksamhetschefen snarare vara aktuellt att minska på lokalytor i primärvården, framtidens vårdcentral kommer enligt henne att vara något helt annat än idag.

Byggnaden nere vid hamnen med sin unika utsikt har under de gångna 15 åren gjort det möjligt att bygga upp en mycket bra primärvård. Det är en fantastisk arbetsmiljö och den är till stor hjälp för verksamhetens arbete med vård och hälsa.

Kommunens planer för framtidens Gustavsberg som innefattar en ny stadspark och en satsning på gåvänliga miljöer i centrum kan också komplettera den goda vård som finns på plats genom att stödja hälsa och välmående på nya sätt.

Lärande erfarenheter

De erfarenheter vi kan lära oss av i detta exempel tar till stor del utgångs-punkt i målet för gestaltad livsmiljö och dess sex preciseringar.

Målet för gestaltad livsmiljö

Arkitektur, form och design ska bidra till ett hållbart, jämlikt och mindre segregerat samhälle med omsorgsfullt gestaltade livsmiljöer, där alla ges goda förutsättningar att påverka utvecklingen av den gemensamma miljön. Detta ska uppnås genom att:

  • hållbarhet och kvalitet inte underställs kortsiktiga ekonomiska överväganden
  • kunskap om arkitektur, form och design utvecklas och sprids
  • det offentliga agerar förebildligt
  • estetiska, konstnärliga och kulturhistoriska värden tas till vara och utvecklas
  • miljöer gestaltas för att vara tillgängliga för alla
  • samarbete och samverkan utvecklas, inom landet och internationellt.

Lärdomar

Platsens kvalitet ger mervärden för vårdcentralen
Valet av placering gav nya utvecklingsmöjligheter för verksamheten, byggnadens yttre kvaliteter såsom utblickar och sammanhang togs med som en viktig kvalitet i den byggda miljön. Detta påverkar idag både arbetsplatsen och vården på ett positivt sätt.

Inkluderande process säkerställer kvalitet i byggd miljö
Verksamhet och arkitekt har samverkat kontinuerligt från planering till färdigställande. Detta har säkerställt att målbilden, både vad gäller behov och gestaltning, har fullföljts. Workshops med personal i planeringsskedet och gemensamma projektmöten i byggskedet har varit viktiga redskap för att nå målet om en medveten arkitektur som stödjer både funktion och upplevelse.

Estetik kopplat till välmående stödjer både personal och patient
Här har en omsorgsfull miljö utformats på ett nytt sätt i en vårdcentral, både vad gäller detaljer i byggnaden och vad gäller byggnadens sammanhang och utblickar. Den byggda miljön stödjer patientens upplevelse av besöket på vårdcentralen och personalens upplevelse av arbetsplatsen. Utblickarna från arbetsrummen, och den lugnande miljön i personalrummet visar på omsorgen om de som arbetar i byggnaden vilket ger en bättre arbetsmiljö och en hållbar lösning på lång sikt.

Efter 15 års drift visar siffrorna att stor del av personalen stannar, det är en attraktiv arbetsplats. Patienter kopplade till vårdcentralen har ökat kontinuerligt, vårdcentralen är idag en av Sveriges största primärvårdsenheter.

Vikten av detaljering, materialitet och sinnlighet i gestaltning
Byggnadens arkitektur, material och detaljer påverkar oss som lever och verkar i den byggda miljön, både på ett medvetet och ett omedvetet plan. Detaljeringsnivån som finns i Gustavsberg vad gäller byggnadsdetaljer som den grafiska skyltningen inomhus, hälsotrappan med behagliga stegmått och den generösa ljuslanterninen bidrar till den omhändertagande atmosfären. Detta är betydelsefullt för att vårdmiljön som helhet ska fungera på ett bra sätt.  

En befintlig byggnad ger både möjligheter och begränsningar
Att använda en befintlig byggnad kan ge både möjligheter och begränsningar. I detta fallet fanns krav från vårdverksamheten att kunna expandera. Det kunde tillgodoses väl då byggnaden var för stor för behoven i första etappen. Vissa ytor i byggnaden reserverades för framtida bruk. Hörsalen kunde, efter vissa ifrågasättanden ändå tas med i första etappen då ytan redan fanns i byggnaden.

Att byggnaden var känd och hade en viktig historia för Gustavsberg har också gett kvaliteter då historien bärs vidare genom att vården får ta byggnaden i anspråk, den blir en ny bärare av platsens identitet.

Byggnadens måttkedjor i fasad har gett relativt smala undersöknings- och mottagningsrum, vilket blivit en kompromiss i användbarhet. Här har utsikten prioriterats för att ge så många som möjligt denna kvalitet i sin arbetsmiljö.

Vårdcentralen som en viktig mötesplats i ett samhälle
Hörsalen och det yttre väntrummet ger nya möjligheter både för verksamheten och för patienterna i Gustavsberg. Rummen har blivit samlingslokaler både för internt och externt bruk. Utveckling och utbildning för verksamheten gynnas genom hörsalens möjligheter, och väntrummet fungerar som café med musik vissa dagar, vilket ger tillhörighet och inkludering på nya sätt.  Personalrummet har också blivit en mötesplats för flera än verksamhetens personal. Det används, både på grund av storlek och på grund av rummets kvalitet, som festlokal och som matsal vid större evenemang.

 

 

Boverket (2022). Gustavsbergs vårdcentral. https://www.boverket.se/sv/samhallsplanering/arkitektur-och-gestaltad-livsmiljo/arbetssatt/vardens-miljoer/larande-exempel2/gustavsbergs-vardcentral/ Hämtad 2026-03-29