Förskolan Kometen – med skogen som lekmiljö
Förskolan Kometen i Växjö gränsar mot både naturreservat och stadsdelslekplats i kanten av bostadsområdet Östra Lugnet. Förskolan är ett exempel på hur planering och utformning i samarbete med verksamheten kan ge en rik och varierad utemiljö till låg kostnad. Med en rymlig förskolegård med skog inpå knuten ges goda förutsättningar till lek och rörelse hela dagen.
Lärande exempel på samhällsbyggnad

Fakta om Kometens förskola
Kommun: Växjö kommun
Färdigställt: 2010
Arkitekt: LBE Arkitekt AB
Landskapsarkitekt: Jungmark Landskapsarkitekt
Ägare: Växjö kommun
Bruttoarea: 1 511 kvm (ca 11 kvm/barn)
Friytans storlek: 8 730 kvm (ca 64 kvm/barn)
Antal barn: 135 (sju avdelningar)
Årskurser: Förskola
Lärande exempel på: Samhällsbyggnad, god lärmiljö, estetik och välbefinnande, rörelse
Skolan som en del av samhällsbyggandet
Idealisk placering av förskola i stadsdel
Växjö kommun har en ambition att planera och bygga för den kommunala servicen tidigt i nya stadsområden. På så sätt visar kommunen närvaro och barnen som börjar i förskola i sin egen stadsdel stannar sedan kvar i grundskolan i området. Därmed motverkas onödig biltrafik och barn och elever får kompisar och tillhörighet i sitt bostadsområde. En viktig målsättning i arbetet är också att bygga nya skolor och förskolor på bra tomter i anslutning till park- och naturområden.
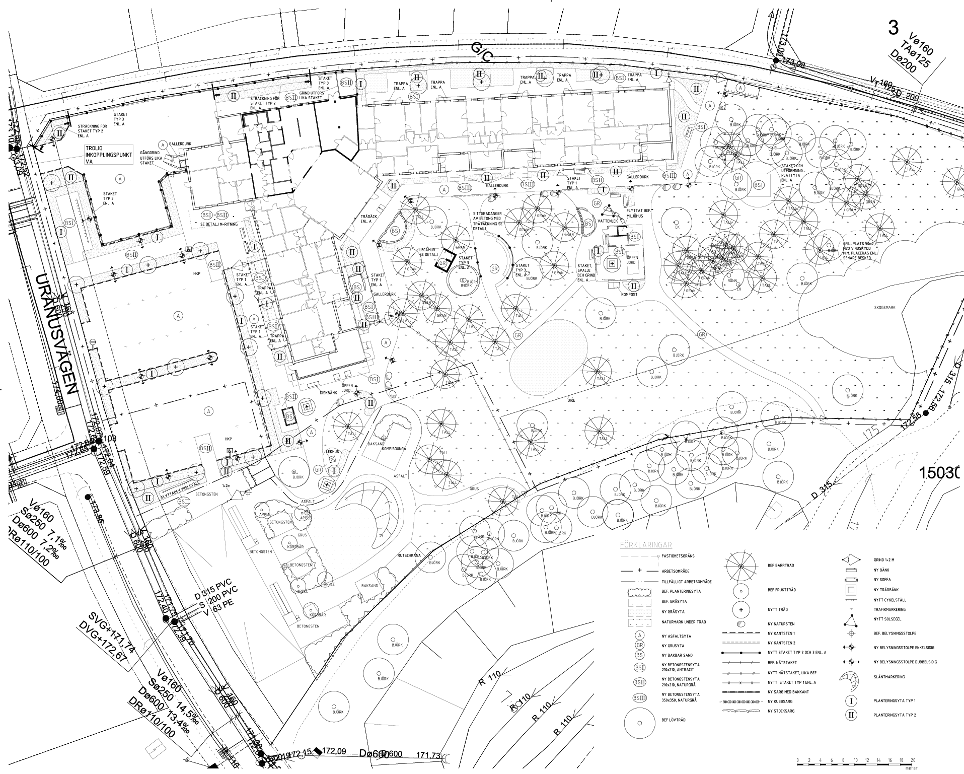
Förskolan Kometen stod klar i samband med inflyttning i Östra Lugnets bostadsområde. Den har en idealisk placering i anslutning till ett naturreservat och en stadsdelslekplats. Förskolan har också en rejäl skogstomt på 11 800 kvadratmeter.
Planeringsprocessen
Tydliga funktionskrav från verksamheten
Förskolans pedagoger var redan under planerings- och projekteringsfasen tydliga med hur de ville arbeta pedagogiskt. Rektorn var drivande i att spara all skog så nära den blivande förskolebyggnaden som möjligt. En bra utemiljö behövs för att kunna arbeta med läroplanen och rektorn var angelägen om att spara naturmark utifrån ett pedagogiskt perspektiv. Rektorn menade att utan skogen skulle verksamheten inte kunna uppnå målen i förskolans läroplan.
I nära samarbete med husarkitekt och landskapsarkitekt utformades byggnad och gård med de funktioner verksamheten önskade. Resultatet har blivit en lättskött gård med låga driftskostnader och stora kvaliteter för förskolans utomhuspedagogik.
[...] Utbildningen ska ge barnen möjlighet att tillägna sig ett ekologiskt och varsamt förhållningssätt till sin omgivande miljö och till natur och samhälle. Utbildningen ska ta tillvara barnens nyfikenhet samt utmana och stimulera deras intresse för och kunskaper om natur, samhälle och teknik. Barnen ska få förutsättningar att utveckla en allsidig rörelseförmåga genom att ges möjlighet att delta i fysiska aktiviteter och vistas i olika naturmiljöer. Utbildningen ska ge barnen möjlighet att uppleva rörelseglädje och därigenom utveckla sitt intresse för att vara fysiskt aktiva [...]
ur Läroplanen för förskolan Lpfö 18.

Byggnadens placering ramar in utemiljön
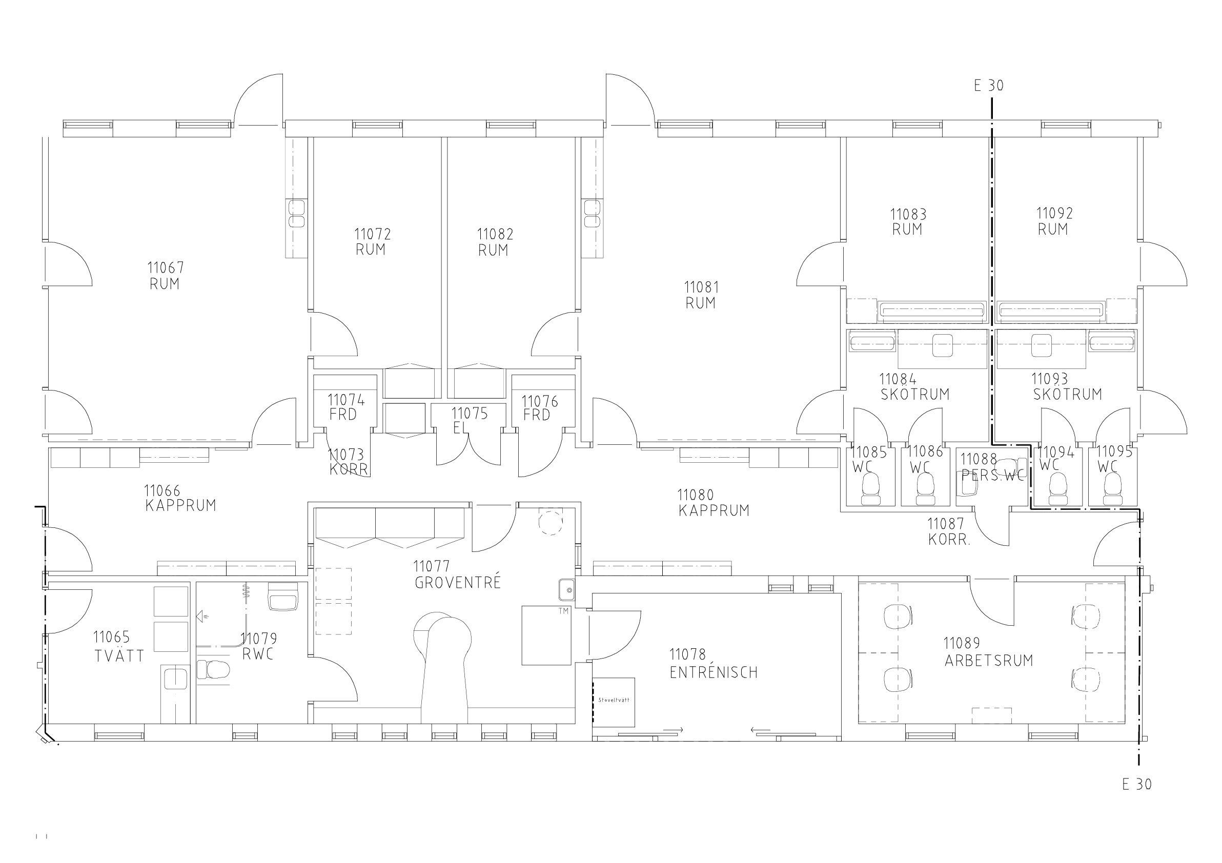
Förskolans byggnad är placerad i ett hörn av tomten, intill angöringsväg och bostadsbebyggelse. Husets form skyddar på så vis barnens utemiljö från trafik, parkering och varuleveranser. Byggnadens placering på tomten gör också att en sammanhängande utemiljö kunnat skapas.
Byggnaden är i ett plan, men den centralt placerade matsalen har dubbel rumshöjd. Från den centrala matsalen sträcker sig två flyglar längs tomtgränsen. Den kortare flygeln är utformad för de yngsta barnen med ett utesovrum, medan den längre flygeln har grupprum och ett klassrum.
Entréer till barnens avdelningar ligger på insidan av byggnadskroppens skyddande skal. De är utformade så att man passerar en entrénisch när man hämtar och lämnar. Terrassdörrar vetter åt byggnadens utsida, och varje avdelning har därmed en egen skyddad uteplats. Utanför matsalen finns ytterligare en uteplats där man kan äta när vädret är fint. Men även om man stannar inne får man rikligt med dagsljus genom matsalens uppglasade fasad.
Administration, sop- och städrum är placerade utåt gatan, liksom utrymmen för personal.
Bra med utrymmen för personal
På Kometens förskola finns bra och avskilda utrymmen för personalen att dra sig tillbaka. De använder matsalen som mötesplats, men har också ett stort personalrum i husets centrala del med en egen uteplats. Denna är avskild från verksamheten med barnen och utgör en zon där personalen kan få ro och återhämtning. Det finns också två mindre arbetsrum i den längre flygeln.
Flexibel planlösning
Planlösningen baseras på en kombination av större grupprum som är kopplade till två mindre, egna kapprum och entrénischer. I flygeln för de äldre barnen kan ett större rum fungera som klassrum till den näraliggande grundskolan om de har behov av extra lokaler något år. På så vis kan förskola och skola samarbeta och övergången för barnen mellan verksamheterna blir inte så dramatisk.
Estetik och välbefinnande
Måttfull gestaltning ger hemtrevnad
Rummens atmosfär är vänlig och lugn. Färgsättningen i kapprum och entréer är mild med pastellfärgad lasyr på trä. Mosaiktavlor och fönster placerade i barnens ögonhöjd skapar hemkänsla. De gemensamma grupprummen är ljusa och luftiga med vita väggar och rejäl yta för lek och rörelse. Matsalen är färgsatt i varma färger, rymlig och med mycket dagsljus genom stora fönsterpartier. För att uppnå bra akustik används flyttbara akustikmöbler som skärmar av mindre rum i det stora.

Byggnad som vänder sig mot naturen
Utemiljön är närvarande i alla rum, även för barnen eftersom fönstren är placerade med låg bröstning. Det finns dörrar åt två motsatta håll från varje avdelning, både mot innergårdens lekmiljöer och till uteplatserna på byggnadens gatusida.
Entrénischer ger en användbar yta mellan ute och inne. Nischerna är inte uppvärmda, men är torra och vindskyddade, då de är en del av byggnadskroppen. Det gör dem användbara som ateljé, uteklassrum eller bibliotek, och inredningen skiftar mellan de olika avdelningarna. Entrénischen är en trygg plats samtidigt som den fungerar som en skyddad utearbetsplats när det regnar. Två barngrupper delar på en entrénisch där barnen också blir hämtade och lämnade.


Goda lärmiljöer
En gård för lek och lärande
Förskolans utemiljö är indelad i två gårdar, som delas av med ett lågt staket. Gården för de minsta barnen har nyligen byggts om och personalen valde då att ta bort gungorna och ersätta dem med sandlek och vattenlek, som komplement till naturmarken.
Det är så skönt att här inte finns några gungor eller cyklar! Det blir bara konkurrens och väntan. Sådana lekredskap skapar passivitet och konflikter.
Personal på Kometens förskola.

Gården för de äldre förskolebarnen består till största del av naturmark med blandskog på torvhaltig jord. Den stora lekytan ger impulser till spring, lek, upptäckter och möten med djurlivet som kommer på besök från den intilliggande skogen.
I naturen kommer leken och fantasin igång på ett helt annat sätt. Barnen sysselsätter sig själva hela tiden och vi i personalen kan finnas som stöd.
Personalen på förskolan
Som komplement till naturleken finns en liten amfiteater, en husruin som består av lecablock, ett aktivitetshus med vatten och el som delas in i ateljé, odling och vattenlek, samt en bygglek med låsbara portar. Några arrangerade platser finns för samling, exempelvis en grillplats med tak som också används som uteklassrum.
Att förskolan är inhägnad men rymlig gör att barnen kan vara ”långt borta”, men ändå trygga. Träden har stammats upp så att personalen får sikt in mot de mest dolda skogsområdena.
Rörelserika miljöer
Utomhus för rörelse och välbefinnande
Skogstomten och den rejäla ytan aktiverar barnen på flera sätt. Det finns plats både för att få upp farten i leken och att hitta platser att dra sig undan på. Träd, stubbar, stenar och varierad terräng ger fysiska utmaningar och barnen kan utveckla motorik, smidighet och omdömesförmåga utifrån sin ålder. Miljön erbjuder barnen att på ett tryggt sätt klättra, använda verktyg, leka med vatten och elda i en kreativ och föränderlig utemiljö som barnen själva kan påverka.
Förskolegårdens placering och karaktär ger välbefinnande till både barn och pedagoger. Naturens egna ljud dominerar förutom barnens röster när de leker i skogen. Barnen vistas utomhus halva dagen, och personalen uppger att de är lugna och balanserade inomhus på grund av detta. De minsta barnen sover utomhus i specialritade sovlådor med sovsäckar i väderskyddade uterum.

Natur ger variation
Gården har olika karaktärer. Trygg nära huset med möjlighet till vuxenkontakt, aktiv och utmanande men också med delar där barnen kan hitta egna ställen och uppleva sig vara ”långt borta” och ifred. Skala och variation varierar liksom topografin.

Naturen är i sig själv mångfunktionell, och de små tillägg som gjorts på förskolans gård har karaktär av verkstäder och experimentytor. Här finns mängder av löst material att leka och bygga med.
Hårt slitage kräver bra dialog mellan förskolan och förvaltaren
Barnens intensiva lek i naturmarken har satt sina spår. Blåbärsris täcker inte längre marken, och det är populärt att gräva i den torvhaltiga jorden vid trädens bas. Rektorn har tillsammans med förvaltaren tacklat problemet med extra säkerhetskontroller av trädens stabilitet. Det finns funderingar på att kapa kronan på de träd som riskerar att falla vid storm. Barnens lekställen på marken kan på så vis förbli intakta.
En oval gräsyta som anlagts i naturmarken har sedan förskolan byggdes ersatts med konstgräs. Motivet var att få en torr yta för bollspel och ett alternativ till den i övrigt dominerande skogsmarken. Konstgräsytan är uppskattad av både barn och pedagoger. Placeringen i naturmark, den ovala formen och den ojämna ytan ger ett annorlunda intryck än konstgräs omgivet av hårdgjorda ytor.

Lärdomar från Kometens förskola
Sparad naturmark stimulerar till lek och rörelse
På Kometens förskola har naturmark och landskapets kvaliteter tagits tillvara i utformandet av utemiljön. Den sparade blandskogen ger stora kvaliteter för barns utevistelse och gynnar välbefinnande och rörelse, samtidigt som den ger stora lekvärden och en ypperlig lärmiljö. Enkla tillägg som väderskyddade uterum och verkstäder för experiment kan ge en bra och billig utemiljö, både att anlägga och att sköta.
God kontakt mellan inne och ute underlättar utevistelse
En planlösning med god övergång mellan inne och ute underlättar för både personal och barn. Entrénischer, skärmtak, uteateljéer och toaletter som är lättillgängliga utifrån gör det enklare att gå ut med barnen och bedriva utomhuspedagogik.
Viktigt med god arbetsmiljö för personalen
Även om barnen står i centrum är personalutrymmen också viktiga. Avskilda personalrum med uteplats och vilrum gynnar verksamheten som helhet.
Dialog mellan verksamhet och utförare är avgörande för en ändamålsenlig utformning
En rektor som har en bärande och förankrad idé om hur man vill bedriva sin pedagogik kan formulera tydliga funktionskrav. Med dessa som grund kan arkitekterna utforma och driva projektet med målsättningen att ge goda förutsättningar för verksamheten. I förvaltningsskedet är nära kontakt mellan verksamhet och förvaltare viktigt för kreativa lösningar med ett barnperspektiv.
Hjälpte informationen dig?
Bra att informationen hjälpte dig! Berätta gärna vad du tyckte var bra. Max 500 tecken. Observera att du inte får något svar.
Beskriv så tydligt som möjligt varför sidan inte hjälpte dig. Max 500 tecken. Observera att du inte får något svar.