Adolfsbergsskolan – en öppen och energisnål högstadieskola
Adolfbergsskolan i Knivsta är en nybyggd högstadieskola där nära samarbete mellan arkitekt, passivhusexperter och den pedagogiska verksamheten har resulterat i en ljus, energisnål och flexibel lärmiljö.
Lärande exempel på samhällsbyggande
 
                    Fakta om Adolfsbergsskolan
Kommun: Knivsta kommun.
Byggår: 2015–2018, invigning 2018.
Arkitekt: LLP Arkitekter.
Landskapsarkitekt: Karavan landskapsarkitekter AB.
Inredningsarkitekt: Nyréns arkitektkontor.
Antal elever: 500 elever 2019 (dimensionerad för 660 elever).
Byggnadsyta: 8 100 kvm BTA (12,2kvm/elev).
Friyta: 10 160 kvm (23 kvm/elev).
Årskurser: 5–9.
Ägare: Knivsta kommun.
Lärande exempel på: samhällsbyggande, vinster med god gestaltning, goda lärmiljöer, rörelserika miljöer.
Skolan som en del av samhällsbyggandet
Knivsta kommun är en av Sveriges snabbast växande kommuner med goda pendlingsmöjligheter till både Uppsala och Stockholm. Tätorten Alsike är ett av kommunens prioriterade utvecklingsområden som kommer få en egen pendeltågsstation. Utbyggnaden av bostäder och inflyttning av barnfamiljer skapade behov av en större skola. Kommunen beslöt då att dela grundskoleverksamheten i två delar och bygga en ny högstadieskola, Adolfsbergsskolan, som stod klar 2018. Den gamla skolan, Alsike skola och den nya skolan ligger på gångavstånd från varandra och delar funktioner som idrott, språksalar och skolkök.
Processen att skapa skola
Adolfbergsskolan hade i ett tidigt skede placerats centralt i Alsike enligt principen ”skolan mitt i byn”. Men vid fördjupade studier av områdets planering kom Knivsta kommun i samarbete med arkitekterna på nya tankar om placering av skolan intill en planerad stadsdelspark. Idrottshall, kulturskola och förskola kunde då samlokaliseras och bli en målpunkt och samlad resurs för hela stadsdelen. Den valda placeringen gav samtidigt skolan närhet till gång- och cykelstråk samt till kollektivtrafik.
Bred samordning i planeringen gav nya gestaltningsmöjligheter
Utbildningsförvaltningen på Knivsta kommun har utvecklat ett visionsdokument med krav på lärmiljöer – Framtidens pedagogiska lärmiljöer för skolan i Knivsta kommun. I styrdokumentet har kommunen formulerat krav på specifika funktioner snarare än specifika krav på ytorna. Detta har gett en möjlighet att i större utsträckning skräddarsy och anpassa byggnaden efter verksamhetens behov och önskemål om en mer flexibel miljö för sin undervisning. Läs mer om visionsdokumentet under Relaterad information.
Vinsterna med god gestaltning
En skräddarsydd passivhusskola
Förutom kommunens funktionsprogram har skolans utformning styrts av Knivsta kommuns höga hållbarhetsvisioner och krav på låg energiförbrukning. Arkitekter och passivhusexperter har tillsammans format en samlad byggnadsvolym som klarar höga energikrav och samtidigt tillgodoser verksamhetens behov av flexibelt användande. En särskild utmaning var specialsalarna för naturorienterande ämnen som kräver mycket energi för frånluft och utsug.
Resultatet är en byggnad med generös rumshöjd, en bredd och ett djup som ger en fördelaktig energibalans för passivhustekniken. Det ger också goda förutsättningar för de rumsliga sambanden En atriumgård inskuren i den kompakta huskroppen ger ljus till byggnadens inre. Det sågformade taket bidrar med överljus från takfönster, men också med energitillförsel från solceller.
Tack vare en god syntes mellan teknik och arkitektur är Adolfsbergsskolan den första högstadieskola som blivit certifierad som passivhus. Energiförbrukningen är till och med hälften av vad som krävs för ett certifierat passivhus.
 
                    Ett välkomnande entrétorg
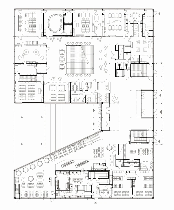
Innanför skolans breda huvudentré möts besökaren av ett ljust och öppet entrétorg med bemannad informationsdisk och god överblick mot skolans olika delar. Här finns plats att slå sig ner och vänta och betrakta dem som passerar. Lärarrummet är placerat intill, och transparenta glasytor ger en känsla av närvaro.
Entrétorget är stort och stora fönsterpartier mot atriumgården erbjuder direkta siktlinjer ut mot skolgård och park. I anslutning till entrétorget ligger en öppen matsal och skolans hjärta, en rymlig trappa som fungerar som en central mötesplats i skolan.
Mest stolt över trappan som jag tycker är fin!
Elev i årskurs 7.
 
                    Goda lärmiljöer
En generell och flexibel lärmiljö
Skolan har tre plan med lärmiljöer som bygger på fasta hemklassrum för årskurs 5 och 6 och ämnesrum för årskurs 7–9. Dessa klassrum kompletteras av stora och öppna gemensamma ytor för studier i mindre grupper och för rast. En bred trappa förenar de tre våningsplanen och skapar naturliga rörelsemönster mellan olika målpunkter i huset. Trappan rymmer 400 sittande och är central i skolan med sin flexibla funktion som aula, samlings- och mötesplats.
I anslutning till trappan finns öppna torgmiljöer möblerade med sittmöbler för umgänge och studier. I dess närhet är även elevernas förvaringsskåp placerade. En flexibel och flyttbar inredning gör det möjligt att påverka inomhusmiljön. För större verksamhetsanpassningar har det funnits utrymme att i samverkan utföra vissa justeringar i dialog mellan arkitekt, elever och lärare av både den fasta och lösa inredningen.
Elever och personal är stolta över skolan och känner att det är vår skola – vi justerar och ändrar möbleringen efter behov.
Lärare på Adolfsbergsskolan.
 
                     
                    Hela skolan är en lärmiljö. Samtal mellan elever och lärare pågår i loungeytorna och överallt.
Lärare på Adolfsbergsskolan.
Stora klassrum men få mindre rum
Kombinationen av flexibla klassrum med stora gemensamma ytor ger lärare och elever möjlighet att välja och anpassa studiemiljön för lektioner och egenstudier. Denna princip sker på bekostnad av att det saknas mindre avskilda grupprum, något flera elever uppger sig sakna.
Specialsalarna, utformade för sina respektive ämnen är mycket uppskattade av elever och lärare. De är tematiskt organiserade med mat/hemkunskap, naturorienterande ämnen/specialsalar och bild/musik i kluster. I anslutning till specialsalarna finns plats för elevernas arbete och utställningar.
 
                     
                    Estetik och välbefinnande
Ljus inomhusmiljö med dämpat ljud
Klassrum och gemensamma ytor har rikligt med dagsljus tack vare fönster i fasad mot omgivning och mot atriumgård samt takfönster. Skolmiljön upplevs ljus och luftig, rik på utblickar mot den gröna omgivningen.
Det goda ljusinsläppet bidrar till att barnen är pigga långt in på eftermiddagen. På andra skolor ser man ofta hur barnen kroknar efter lunch.
Specialpedagog på Adolfsbergsskolan.
Skolan är helt skofri och har en textilmatta i stora delar av de gemensamma ytorna. Tillsammans med andra textilier och ljudabsorbenter skapas en behaglig ljudmiljö trots rummens storlek, öppenheten och alla människor som rör sig och vistas där. Den skofria kulturen ger en ren och trivsam miljö där eleverna kan sitta uppkrupna med fötterna i en fåtölj och läsa.
Rörelserika miljöer
En luftig och samordnad utemiljö
Skolbyggnadens placering i en sluttning är välgörande och ger en känsla av rymd och luftighet redan när man kliver ut på atriumgården mot väster. Skolgårdens utformning är liksom inomhusmiljön en storskalig och öppen. Den är funktionell och praktisk med stort fokus på sportytor och mindre hängytor som bänkar, hammockar och kompisgungor.
 
                    Sittplatser och samlingsplatser erbjuds i den breda trappan mot atriumgården, och på ett antal flyttbara bänkar. Det finns även hängmattor och samlingsplats med bänkar i anslutning till den naturmark som gick att spara.
I direkt anslutning till byggnaden saknas mer småskaliga platser dit elever kan dra sig undan och umgås på tu man hand.
 
                    En dunge med befintlig naturmark var möjlig att spara och verkar uppskattas. Här finns spår av lek och den erbjuder mindre rum och skydd från den öppenhet som råder i övrigt. I direkt anslutning till skolgården är en ny stadspark med öppet vatten och planteringar under uppbyggnad.
Då tomten har stora nivåskillnader och ligger i suterräng har de anlagda vegetationsytorna som främsta funktion att binda jorden i slänterna. De avgränsar också cykelparkering från sportytor. I övrigt domineras den gröna delen av skolgården av stamträd och klippta gräsmattor. De planteringar som är anlagda är nyetablerade och små i storleken. På sikt kommer de dock skapa mer rumslighet och rama in skolgårdens olika platser.
 
                    Skolgården som en gemensam resurs för stadsdelen
En bärande idé med utformningen av skolgården var att sportytorna skulle användas av de som bor i stadsdelen på helger och kvällar. Gränsen mellan skolgård och park är flytande, och gården rymmer flera viktiga stråk från skola mot idrottsytan och mellan bebyggelse på båda sidor om parken.
 
                    Lärdomar från Adolfsbergsskolan
Skola som styrande faktor i samhällsbyggandet
Adolfsbergsskolan är ett exempel på hur en medveten lokalisering ger mervärden för hela stadsdelen. Lokalisering och placering gjordes efter analys av området, tomten, skolgårdens yta, möjligheter till samutnyttjande och kommunikationer. Skolan byggdes först och därefter byggdes bostäder och samhällsfunktioner.
Arkitektur kan samordna höga energikrav och verksamhetens behov med gestaltning
Adolfsbergsskolan är resultatet av en kommunal satsning på profilstark arkitektur som tillsammans med en hållbar teknik skapat en hållbar och energisnål byggnad.
Tydliga och generösa entréförhållanden ger överblick och trygghet
Skolans rymliga och välkomnande entrétorg ger tydlig orientering. Såväl elever som besökare får bra överblick och samtidigt trygghet genom det angränsande lärarrummet och den bemannade receptionen.
Medveten inredning och materialval ger en ljus och tyst miljö
Valet av textila mattor och golv är unikt för en högstadieskola och ger inte bara en bra ljudmiljö, utan även mer mjuka och trivsamma rum som möjliggör andra rörelsemönster och en annan typ av användning.
Hjälpte informationen dig?
Bra att informationen hjälpte dig! Berätta gärna vad du tyckte var bra. Max 500 tecken. Observera att du inte får något svar.
Beskriv så tydligt som möjligt varför sidan inte hjälpte dig. Max 500 tecken. Observera att du inte får något svar.
 
                                  
                                  
                                  
                                 