Skolans rumssamband och huvudsakliga rumsfunktioner
Hur skolans olika rumsfunktioner placeras i förhållande till varandra och hur de förbinds påverkar hur barn och vuxna kan mötas, agera och interagera. Byggnadens rumsliga organisation kan understödja och förtydliga skolans pedagogiska idé. En rumslig indelning i hemvister blir allt vanligare av organisatoriska och sociala skäl, liksom att dela in byggnaden i olika zoner

Att tänka på vid gestaltningen
- En planlösning med korridorer ger rum som är tydligt avgränsade från varandra med ett fåtal vägar in och ut. Detta skapar ett begränsat men tydligt rörelsemönster genom rummen och byggnaden.
- I en öppen planlösning har ytan mellan klassrummen utvecklats till en plats för lärande och samvaro. Flera alternativa vägar genom denna yta luckrar upp gränsen mellan klassrum och andra vistelseytor och skapar ett friare rörelsemönster.
- Lärmiljöer fungerar bättre om de inte är genomgångsrum, eftersom det då blir lättare att koncentrera sig. Hemvisters gemensamma allrum är ofta genomgångsrum och behöver därför gestaltas med särskilt stor omsorg för att fungera som bra lärmiljöer.
- Korridorer, uppehållsrum, toaletter och omklädningsrum behöver placeras och utformas med särskild omsorg för att upplevas inkluderande och trygga. Vuxnas närvaro eller visuell kontakt mellan vuxna och elever ökar tryggheten.
- Överblick kan skapas via såväl visuell kontakt som genom öppningar och passager mellan olika rum.
- Pedagogarbetsplatserna ges med fördel en central placering för att främja oplanerade och informella möten mellan pedagoger och elever.
- Det är viktigt att det finns en plats för större samlingar med flera klasser och/eller med anhöriga. Denna plats kan vara inomhus eller utomhus.
- Samnyttjande av vissa lokaler med allmänheten (exempelvis bibliotek och salar för slöjd, musik, bild, gymnastik och hemkunskap) underlättas om dessa rum finns i en avgränsad del av byggnaden med en entré i direkt anslutning.
Mervärde
- Om skolan är skofri kan en skozon skapas i den yttre delen av entrén där skor tas av och på samt förvaras. På så sätt slipper eleverna bära smutsiga och blöta skor fram och tillbaka genom den skofria delar av byggnaden.
-
Kapprummen placeras med fördel i direkt anslutning till entréerna för att minska behovet av att bära ytterkläderna fram och tillbaka.
-
Specialsalar för slöjd och musik kan ligga i en egen del av byggnaden för att minska risken för att ljud stör övrig verksamhet.
-
Om musiksalen ligger i anslutning till en yta för större samlingar kan den utformas så att den tillfälligt kan öppnas upp för konserter och andra uppträdanden.
Utöver byggnadens rumsliga organisation påverkar även materialval, färgsättning, konstnärlig gestaltning, luftkvalitet och ljud- och ljusmiljö byggnadens ändamålsenlighet och hur den upplevs. Läs mer om detta under respektive rubrik i denna vägledning.
Planlösningens karaktär
Genom åren har idealen för skolans rumsliga organisation skiftat beroende på läroplaner, synen på lärandet och förhållandet mellan lärare och elever. Indelning av pedagogerna i arbetslag, undervisning i hemklassrum eller ämnesklassrum, hur och var specialundervisning sker och om fritidshemmet huserar i skolans lokaler eller i egna är faktorer som påverkar byggnadens övergripande organisation och dess rumssamband. De skolbyggnader som byggs idag behöver kunna anpassas till liknande förändringar för att vara långsiktigt hållbara.
Valet av planlösning påverkar möjligheten för olika aktiviteter och funktioner, liksom huruvida de ska överlappa varandra eller separeras. I skolbyggnader där rummen kan användas flexibelt har planlösningen ofta en öppen karaktär. En viss flexibilitet kan byggas in även i en traditionell korridorsplan genom att några rum görs öppningsbara, så att deras storlek och grad av avskildhet kan varieras. Gränsen mellan klassrum och andra vistelseytor kan, oavsett planlösningens karaktär, luckras upp genom att det finns alternativa vägar in och ut ur olika rum.
Nedan beskrivs tre typer av rumslig organisation som är vanligt förekommande på landets skolor. De kan alla främja inlärning, samarbete, kreativitet och återhämtning beroende på hur de gestaltas.
Korridorsplanen
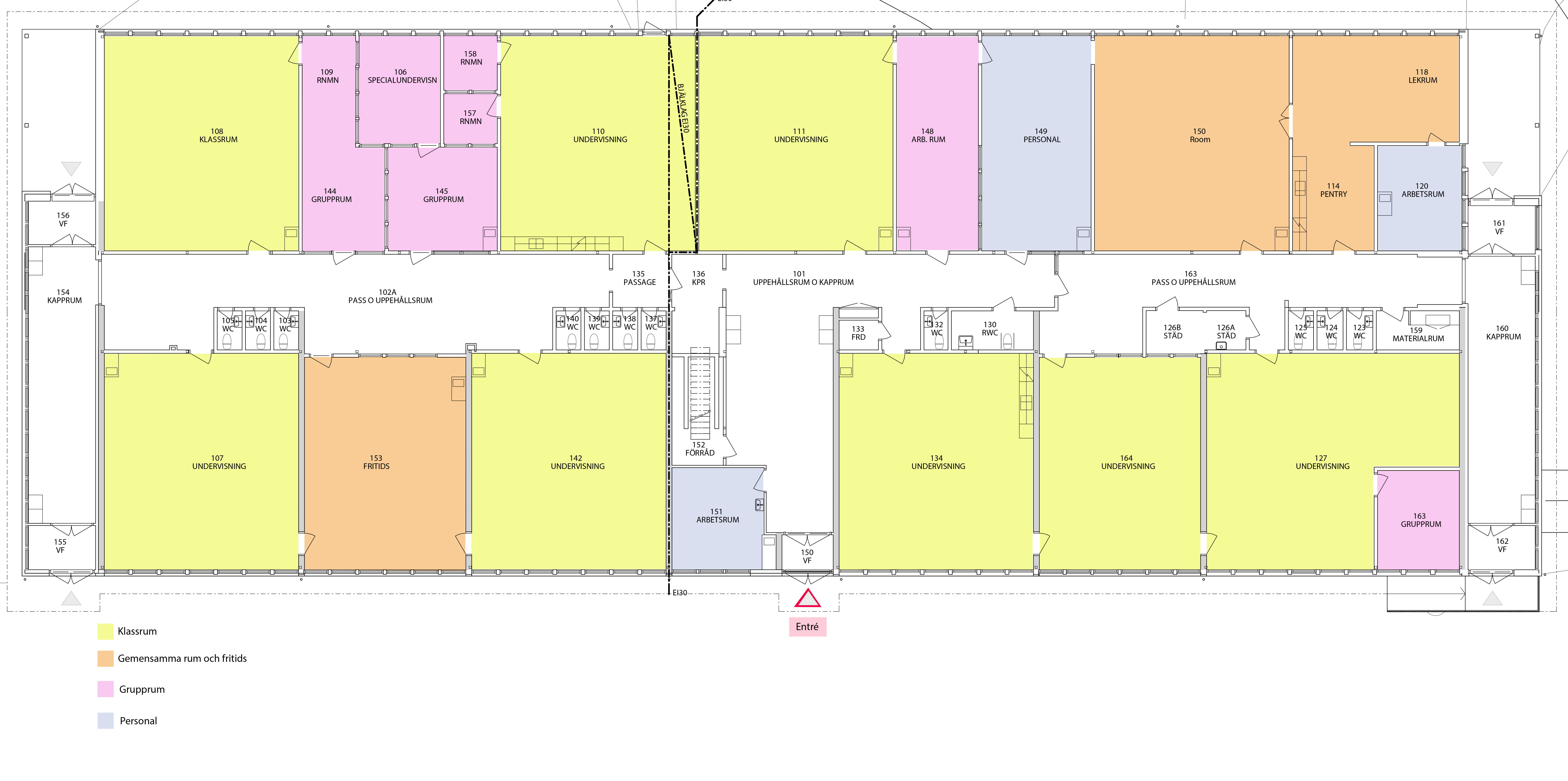
En korridorsplan delar upp rummen utmed ett samlande, gemensamt rörelsestråk (korridoren). Rummen är tydligt avgränsade från varandra, vilket skapar ett på förhand strukturerat rörelsemönster där förflyttningar främst sker via korridoren. Den pedagogiska verksamheten bedrivs till största del i klassrum och grupprum utmed denna korridor. Rummen kan vara olika stora och gestaltade på olika sätt så att en variation av lärmiljöer skapas.
Den öppna planlösningen
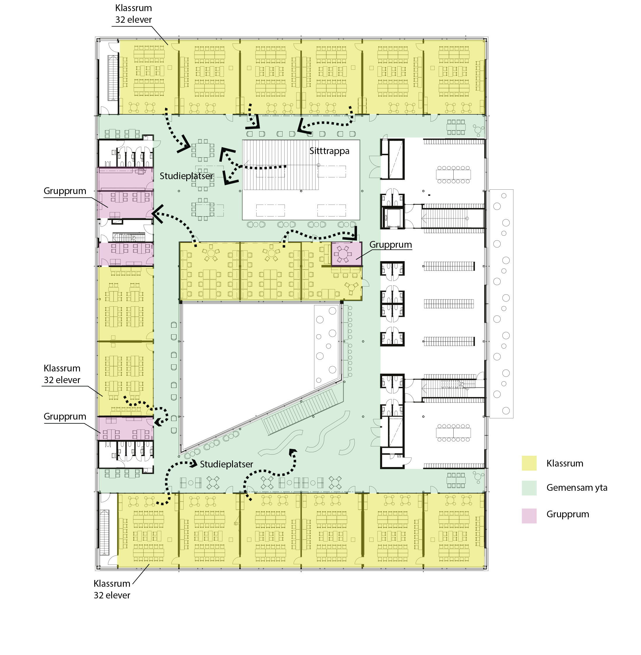
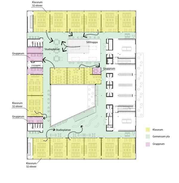
I den öppna planlösningen har korridorens funktion - i bred mening rummet utanför klassrummet, eller den yta som förbinder olika rum - gjorts till en plats för lärande och samvaro. Rörelsemönstret blir mindre förutbestämt än i korridorsplanen och såväl pedagoger som elever överblickar och överblickas av ett större antal individer (Sailer, 2018). Förvaring, bord och olika typer av sittmöbler finns ofta i den öppna ytan.
Hemvister med olika förutsättningar
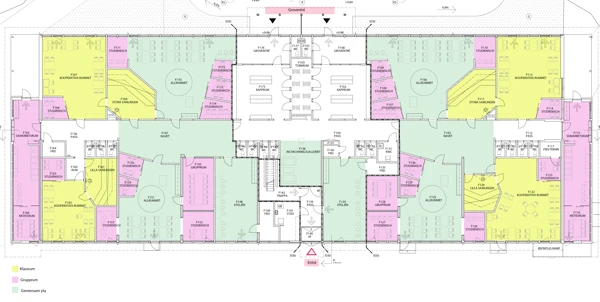
I takt med att skolorna blir allt större har det blivit vanligt med en rumslig indelning i hemvister. Ibland syns denna indelning i planlösningen och ibland är den främst organisatorisk. Syftet är att skapa mindre enheter för att främja lärande, grupptillhörighet och samarbete lärare och elever emellan. Hemvisterna har vanligen en sinsemellan liknande sammansättning av funktioner som klassrum, personalarbetsrum, allrum, grupprum, toaletter och kapprum. I varje hemvist arbetar en grupp pedagoger – ett arbetslag – med en elevgrupp som har hemvisten som sin bas under skoldagen. En hemvist skapar en rumslig och social tillhörighet – en zon där eleverna kan sätta sin egen prägel och känna sig mer hemma än i övriga delar av skolan.
Beroende på var i skolbyggnaden hemvisten ligger och på hur slutet eller öppet den utformas i relation till den övriga skolan skapas olika förutsättningar för lärande och återhämtning. Hemvister som fungerar som passage för elevgrupper från andra hemvister blir inte lika tydligt till för de elever som har den som sin bas. Lärmiljöer fungerar bättre om de inte är genomgångsrum, eftersom det då blir lättare att koncentrera sig. Hemvisters gemensamma allrum är ofta genomgångsrum – om än för elever från samma hemvist – och behöver därför gestaltas med särskilt stor omsorg för att fungera som bra lärmiljöer. Om varje hemvist kan få en egen entrézon minskar såväl antalet genomgångsrum i byggnaden som risken för trängsel. Läs mer om detta under rubriken Klassrum och gemensamma lärytor i denna vägledning.
Lärande exempel: Att bygga hemvister av en korridorsplan - Iggesunds skola i Hudiksvalls kommun
Byggnad F på Iggesunds skola byggdes ursprungligen med stora klassrum längs en korridor. Gruppstorlekarna styrdes av antalet klassrum, vilket innan ombyggnaden krävde undervisning i helklass med en klasslärare för att rymma alla elever. Detta ledde till ett stort behov av assistenter och resurspersonal och därmed en ständigt växande personalbudget. Byggnad F byggs nu om för att fungera bättre tillsammans med den önskade organisationen i hemvister och små arbetslag.
Målet är att kunna erbjuda en mer individanpassad lärmiljö som stöder pedagogiken och underlättar samarbete både mellan pedagoger och elever. Byggnaden får fler entréer för att minska stress kopplat till trängsel. I anslutning till entrézonen skapas en plats för att kunna ta emot eleverna på ett bra sätt på morgonen – en så kallad incheckningsplats. Korridoren breddas bitvis och byggs om till en central hall. Varje hemvist får två allrum, två så kallade kooperativa rum – klassrum som inte är riktade mot någon särskild ”tavelvägg” utan har jämlikt utplacerade monitorer och ett antal bord för fyra elever vardera, två samlingsrum som används vid inledande och avslutande genomgångar, ett samarbetsrum, ett grupprum och en ateljé.
Skolbyggnadens zoner
En skolbyggnad kan delas in i olika zoner. Om skolan är skofri kan en skozon skapas i den yttre delen av entrén där man tar av och på samt förvarar skor. På så sätt slipper eleverna bära smutsiga och blöta skor fram och tillbaka genom den skofria delar av byggnaden. Kapprummen, om sådana finns, placeras lämpligast i direkt anslutning till entréerna för att eleverna ska slippa förflytta sig till sina respektive kapprum med ytterkläderna i handen. Detta för att undvika att saker försvinner på vägen mellan entré och kapprum. För de högre årskurserna ersätts kapprummen vanligen med egna skåp där ytterkläderna förvaras.
En hemvist utgör i det närmaste en privat zon där eleverna kan känna sig mer hemma än i övriga delar av skolan. Det finns dock tillfällen då hela eller stora delar av skolans elever och personal behöver samlas, liksom ibland även föräldrar och anhöriga. Skolstart, skolavslutning, elevuppträdanden och för att förmedla viktiga budskap rörande verksamheten kan vara sådana tillfällen. Detta äger rum i en halvoffentlig zon. En aula, foajén eller en skyddad men samtidigt lättillgänglig del av skolgården kan fungera som ett sådant samlingsrum. Används foajén eller en annan liknande yta är det viktigt att se till att utrymningsvägar inte blockeras vid större sammankomster.

Specialsalarna tillhör också den halvoffentliga zonen. Om specialsalar för slöjd och musik ligger i en avgränsad del av byggnaden minskar risken för att ljud stör övrig verksamhet. Samtidigt kan den centrala samlingsplatsen (se stycket ovan) fungera som ett scenrum tillsammans med musiksalen om de ligger intill varandra och någon del av väggen kan öppnas upp tillfällig. Musiksalen behöver även små övningsrum i nära anslutning.
Slöjd-, musik- och bildsalar liksom bibliotek, gymnastiksal och hemkunskapssal är också exempel på rum som under delar av dygnet kan samnyttjas med andra verksamheter (exempelvis närliggande skolor, kulturskolan eller det lokala föreningslivet). Samnyttjandet underlättas genom en så kallad sektionering av byggnaden. Det innebär att en del av skolan – som då utgör en offentlig zon – har en särskild entré och är avgränsad mot den övriga byggnaden inifrån med låsbara dörrar. På så sätt kan allmänheten ges tillträde endast till den samnyttjade delen av byggnaden och inte till delarna med hemklassrum, hemvister eller personalutrymmen. Läs mer om detta under rubriken Samnyttjande i denna vägledning.
Elevhälsan behöver placeras med hänsyn till besökarens integritet. Om möjligt placeras den i anslutning till besöks- eller personalentrén så att den vid behov kan nås utan att behöva passera skolverksamheten. Ett vilrum placeras med fördel i anslutning till elevhälsans rum.
Rumssamband som skapar förutsättningar för trygghet
Korridorer, uppehållsrum, toaletter och omklädningsrum är rum där eleverna vistas före, mellan och efter lektionstid utan att vuxna naturligt finns till hands om konflikter eller hotfulla situationer skulle uppstå. Den låga nivån av vuxnas insyn, och trängsel då många ska förflytta sig samtidigt mellan lektionerna, gör att de lätt blir platser för mobbing, trakasserier och skadegörelse. Ett jämnt och blandat flöde av människor i byggnadens olika delar ökar tryggheten. (Thodelius, 2019)
Rätt placerade och kopplade till andra rum och vistelseytor – visuellt eller genom öppna passager - kan en korridor eller ett uppehållsrum fungera såväl trygghetsskapande som brottsförebyggande. Genom att placera exempelvis pedagogarbetsplatser i nära anslutning till dessa rum skapas en naturlig vuxennärvaro. Uppehållsrummet kan också ligga i anslutning till skolans café/restaurang för att öka närheten till skolans personal. Toaletter placeras så att utrymmet utanför är överblickbart av vuxna. En byggnadsstruktur med flera entréer och trapphus minskar riken för trängsel samtidigt som det bidrar till att dela in skolan i mindre zoner där eleverna lättare kan känna tillhörighet. Läs mer om detta under rubriken Trygghetsskapande gestaltning inomhus i denna vägledning.

Referenser
Sailer, Kerstin, ”Corridors, Classrooms, Classification – The impact of school layout on pedagogy and social behaviours” in Daniels, Harry et al “Designing for the future of schooling”, Routledge, 2018
Thodelius, Charlotta, ”Architecture and Deviance in schools - Implications of a Meta-Synthesis of hotspots” (in Swedish), Nordisk Arkitekturforskning nr. 2, 2019
Hjälpte informationen dig?
Bra att informationen hjälpte dig! Berätta gärna vad du tyckte var bra. Max 500 tecken. Observera att du inte får något svar.
Beskriv så tydligt som möjligt varför sidan inte hjälpte dig. Max 500 tecken. Observera att du inte får något svar.